- 奈良県宇陀市榛原安田
広々庭付き大人数宿泊可能な古民家住宅
県道沿いの交通の便にも恵まれた好立地の古民家住宅です。スーパーまでは車で約4分と生活環境も便利な物件となっております。大きな庭と部屋数が多いので大家族や親せきや友人仲間、企業の保養所としても十分な広さと部屋数が確保できます。
- 田舎暮らし
- のんびり
- 静か
- いなか
- 週末田舎
- セカンドハウス
- 古民家
- 別荘
- 宇陀市
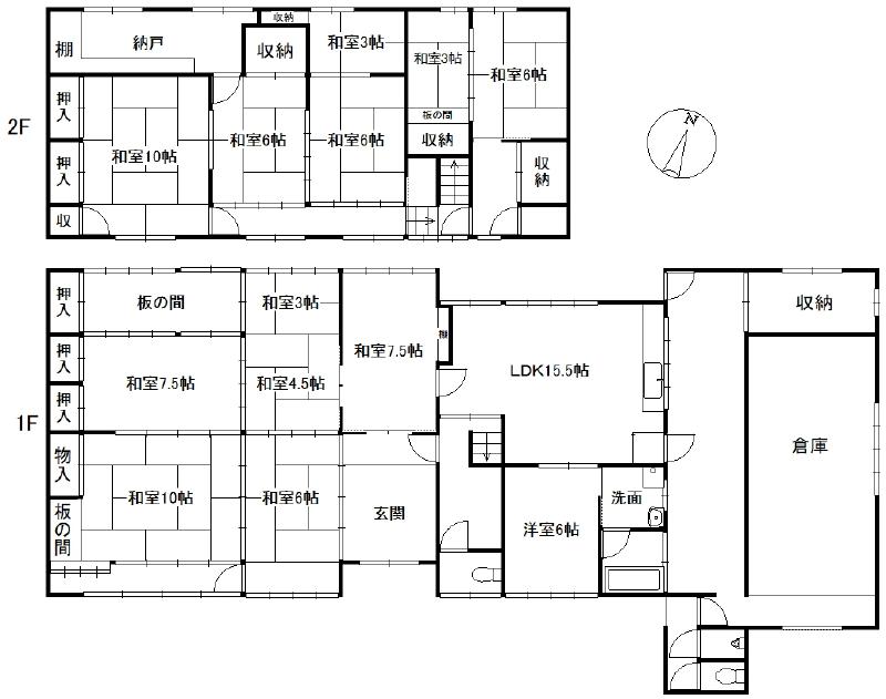
プラン図
-
建物外観
-
玄関
-
1階和室
-
1階板の間
-
キッチン
-
洗面
-
浴室
-
トイレ
-
2階和室
-
洋室
-
倉庫
-
前面道路東から
-
前面道路西から
-
建物背景
-
全面景観
総合評価
近鉄大阪線榛原駅より車で約5分という好立地でありながら、周りを緑に囲まれた自然豊かな物件となっております。部屋数が多いので大人数での宿泊も可能です。広々お庭でのBBQもお楽しみの一つです。
-
物件番号
016
-
所在地
奈良県宇陀市榛原安田80番地1
-
種別
古民家住宅
-
地目
宅地
-
地勢
平坦
-
土地面積
563.71㎡
-
建物面積
281.91㎡
-
築年
1951年1月
-
改築年
不詳
-
接道状況
南側公道に接道
-
都市計画
市街化調整区域
-
用途地域
無指定
-
建ぺい率
無指定
-
容積率
無指定
-
法令
-
-
設備
上水道・浄化槽・プロパンガス
-
アクセス
近鉄大阪線榛原駅まで車で約5分 篠楽バス停まで徒歩で約18分
-
くらし
スーパーまで車で約4分
-
備考
附属建物(物置46.34m2)があります。
-
取引態様
媒介
-
売主
-
掲載されている図面・データが現況と異なる場合は、現況を優先します。
